В Бресте 4 декабря состоялся аукцион за земельный участок в центре города, который ограничен улицами Дзержинского, Советских Пограничников, Свердлова и Карла Маркса. Его продали за 2,7 млн рублей застройщику «Аматар», который уничтожает исторический Брест.
Читайте также: «Итальянский квартал» в Бресте снова ушел с молотка — но уже за полцены. Узнали, за сколько его купили
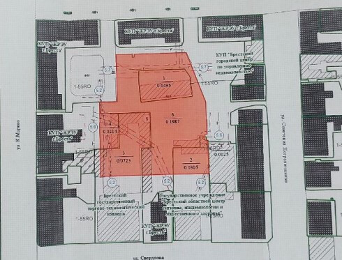
Почему за небольшой участок заплатили почти 1 млн долларов
Площадь участка, выставленного на аукцион, составляет 0,37 га. Срок аренды — 5 лет. Торги начались с цены 15 486,18 рубля.

Ориентировочный размер убытков из-за изъятия земельных участков и сноса расположенных на них объектов недвижимости оценили в 345 363,54 рубля. Эти убытки землепользователям возместит победитель аукциона.
В аукционе участвовали известные в Бресте застройщики: «Айрон», «Аматар», «Бетонный улей», «Будаўнiчы рай» и «Полесьежилстрой». Последнюю ставку в 2,7 млн рублей сделал «Аматар» и выиграл эти торги. Получается, что цена за участок выросла более чем в 174 раза.
Портал о недвижимости Wikidom предполагает, что здесь появится современный клубный дом. Их в Бресте в последнее время строят все чаще.
Читайте также: Жители дома в центре Бреста пожаловались на спил деревьев под окнами. Рассказываем, кто это мог сделать
Как «Аматар» уничтожает исторический Брест
В феврале 2024 года внимание «Нашай Нiвы» привлекла статья «Онлайнера» про дома «Спортивного клуба «Аматар». Этот застройщик со странным спортивным названием сегодня активно застраивает центр Бреста.
Среди его последних проектов — спроектированные местной организацией «БрестКАДпроект» жилые дома по улице 17 Сентября, 3 и 15, улице Советских пограничников, 8, а также торгово-офисное здание по улице Дзержинского, 24. Все это один квартал в историческом центре. Некоторые из зданий достаточно стильные, другие — совсем неудачные и по форме, и по архитектурному решению фасадов.
Но главное, что все эти здания (за исключением внутриквартального дома по улице 17 Сентября, 15) были построены на месте старых каменных строений. В статье отмечается, что эти участки застройщику достались с «ветхими, без грифа архитектурной ценности жилыми домами», на месте которых застройщик возвел комфортное современное жилье, архитектура которого не повторяется.
Но это не совсем правда. «Гриф архитектурной ценности» был на части ушедших под снос зданий. Эти здания не имеют того же статуса, что памятники архитектуры, но также охраняются. Запрещено их уничтожение, изменение основных габаритных параметров и характера архитектуры фасадов. Более подробно читайте по ссылке ниже.
Читайте также: Расследование: кто и как уничтожает исторический Брест, строя новые дома, и при чем здесь бывший силовик
Будь на связи и в безопасности: подключи BGlobal VPN
Наш канал в Telegram. Присоединяйтесь!
Есть о чем рассказать? Пишите в наш Telegram-бот. Это анонимно и быстро


Сообщить об опечатке
Текст, который будет отправлен нашим редакторам: